+6
Font-Romeu-Odeillo-Via (66120)

Chalet 8 pièce(s) 4 chambre(s) 365 m²

3
1021 m²
2
1 710 000 €
Réf chaletneuf

Livraison octobre 2028. Unique sur Font-Romeu.

Vente d'un projet chalet neuf en fustes haut de gamme :

Le chalet de prestige que nous vous proposons à Font-Romeu est encore à l'état de projet, mais il représente une occasion rare d'acquérir une propriété sur-mesure, avec livraison prévue en octobre 2028. Ce projet d'exception est situé dans un écrin de verdure, à seulement quelques pas du centre-ville et dans un quartier résidentiel calme et recherché.

Le chalet de 365 m² sera édifié sur une parcelle de 1021 m², bordée de rochers naturels et entourée de forêts, offrant ainsi une vue spectaculaire sur les montagnes des Pyrénées. Ce bien rare, conçu pour allier modernité et authenticité, pourra être personnalisé selon vos désirs avant même le début de la construction.

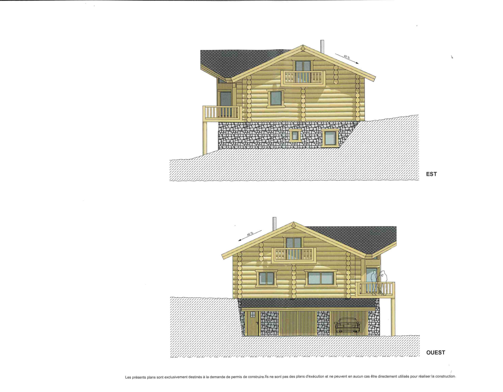
Ce projet immobilier représente un chalet en fustes avec soubassement en pierres, qui se distinguera par son design élégant et son intégration parfaite dans la nature environnante. Les plans ont été pensés pour offrir un confort optimal, tout en respectant l’authenticité et l’âme du lieu.

L'orientation sud du chalet permettra de profiter au maximum de la lumière naturelle et des vues imprenables sur la forêt, les montagnes et la nature. Grâce à sa situation géographique, le chalet sera un véritable refuge naturel, où vous pourrez observer la faune locale dans un cadre calme et préservé.

Au sein de cet environnement calme, vous aurez le plaisir de croiser la faune locale, un endroit où les animaux sauvages se feront les discrets voisins des habitants, et où chaque lever de soleil rappellera la beauté intacte des Pyrénées.

Le chalet sera construit avec des matériaux de qualité supérieure, dans le respect des standards les plus exigeants. Parmi les éléments clés :

  • Parquet en chêne thermo-traité, pour une esthétique élégante et une grande durabilité

  • Carrelage à l'ancienne et pierres naturelles, pour un rendu authentique et raffiné

  • Fustes et vieux bois pour une atmosphère chaleureuse et naturelle

  • Enduit blanc intérieur pour maximiser la luminosité et la sensation d’espace

La luminosité sera un point fort du projet, grâce à des grandes baies vitrées et un éclairage moderne, avec des spots LED dans toutes les pièces, permettant de mettre en valeur l'architecture et les matériaux.

Ce chalet constitue une opportunité unique pour un futur projet de résidence principale ou de résidence secondaire de luxe. L'emplacement privilégié de Font-Romeu, avec sa station de ski réputée et ses paysages à couper le souffle, en fait un lieu de vie idéal tout au long de l'année.

De plus, ce projet présente également un potentiel important pour un investissement locatif haut de gamme, notamment pour des locations saisonnières de luxe, grâce à son emplacement, son agencement optimisé et ses prestations haut de gamme.

Sa superficie généreuse, ses équipements modernes et son cadre idyllique garantiront un rendement locatif élevé, notamment dans cette station de ski réputée.

Ce chalet, en parfaite harmonie avec la nature environnante, sera bien plus qu’une simple maison : il deviendra un véritable refuge dans les montagnes des Pyrénées. Chaque matin, vous pourrez admirer un lever de soleil spectaculaire sur les cimes enneigées, et chaque nuit, vous serez bercé par le calme absolu des montagnes.

Le chalet sera vendu meublé et équipé. Les acquéreurs bénéficieront de mobilier haut de gamme et d'équipements modernes, pensés pour offrir un confort optimal dans toutes les pièces. La description détaillée du mobilier et des équipements sera fournie prochainement.

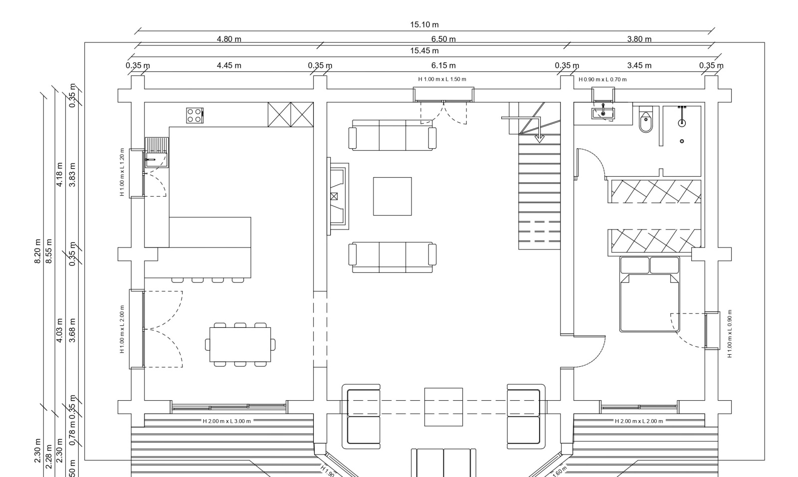
Comprenant : Rez-de-chaussée : Il développe une superficie de 153 m². Hall d'entrée avec placards vieux bois ainsi que la porte d'entrée, grande pièce de détente/loisirs (bar salon détente accès jardin) cette pièce peu être amménagée à sa guise, donnant sur terrasse/jardin, 1 chambre avec parquet en chêne, salle d'eau (douche à l'italienne) : elle peut être une suite parentale comme indépendante, wc indépendant, buanderie, double garage spacieux avec porte en vieux bois pouvant accueillir de gros véhicules, salon d'été avec mobilier ainsi que barbecue et équipement complet (terrasse chauffée).

Au niveau principal : Il développe une superficie de 122 m² environ. Vaste cuisine entièrement équipée de 17 m² ouverte sur salle à manger de 16 m² donnant sur une somptueuse terrasse, double salon de plus de 60 m² avec cheminée insert offrant une pièce à vivre ultra lumineuse grâce à de grandes baies vitrées, suite parentale de 28.29 m² (chambre, dressing, placards, douche à l'italienne + wc) cette chambre donne également sur une somptueuse terrasse.

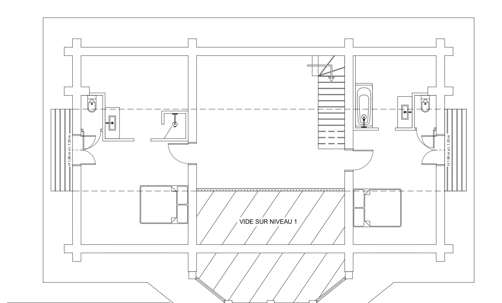
Au dernier étage : Il développe une superficie de 91 m². Grande mezzanine de 30 m² environ (pouvant être un bureau, coin détente/bibliothèque/lecture), elle est ouverte sur le vide sur séjour (possibilité d'agrandissement selon les désirs comme le choix d'utilité de cette pièce), 2 suites parentales dont 1 de 33 m² avec son balcon (chambre, salle de bains, wc, dressing, placards sous les combles) et 1 autre de 28 m².

Prix : 1 710 000 €

Bilan énergétique

Diagnostics énergetiques
A propos de ce bien Caractéristiques de ce bien
  • Surface 365 m²
  • terrain 1 021 m²
  • séjour 60 m²
  • 4 chambre(s)
  • 3 salle(s) d'eau
  • cuisine américaine (équipée)
  • 2 garage(s)
  • exposition Sud
  • 3 niveau(x)
  • vue montagnes et forêt
  • terrasse
  • arboré
  • visiophone
  • interphone
  • quartier centre-ville, haut Font-Romeu
  • accès handicapé

Financier

Informations financières
Prix de vente 1 710 000 € Les honoraires d'agence seront intégralement à la charge du vendeur

Autour du bien

Découvrez le quartier

Simulation

Calcul des mensualités
* Champs obligatoires
LEX IMMOBILIER Agence